Budynek B4
Osiedle Wrzosowa to 6 budynków wielorodzinnych położonych w Lęborku na Osiedlu Wschód, łącznie oferta zawiera 96 komfortowych, nowoczesnych mieszkań o powierzchni od 28 m2 do 50m2. Położenie inwestycji zapewnia szybki dojazd do Trójmiasta – dzięki drodze ekspresowej S6 lub pobliskiemu węzłowi kolejowemu w 30–40 minut. To atrakcyjna propozycja dla mieszkańców Lęborka i okolic a także dla osób szukających nieruchomości w korzystnej cenie w celach inwestycyjnych.
Proponujemy mieszkania 1, 2 i 3 -pokojowe o metrażach od ok. 28m² do 50 m². Do każdego mieszkania przynależna jest komórka lokatorska – gratis. W budynku zaprojektowana jest hala garażowa oraz winda. Każde mieszkanie ma przestronny balkon lub taras. W mieszkaniach będą położone tynki, gładzie szpachlowe, ściany pomalowane na biało, okna, drzwi zewnętrzne, gniazda elektryczne, kontakty i włączniki, ogrzewanie podłogowe nieskotemperaturowe. Na każdym z budynków będzie znajdowała się instalacja fotowoltaiczna, która z pewnością obniży koszty eksploatacyjne.
OSOBY KUPUJĄCE NIE PŁACĄ PODATKU PCC W WYSOKOŚCI 2%.
Zapraszamy na szczegółową prezentację oferty oraz uzyskanie dodatkowych informacji do naszego biura sprzedaży w Lęborku przy ul. Wileńskiej (po oprzednim umównieniu 517 353 178).
ZNAJDŹ SWOJE MIESZKANIE
Osiedle Wrzosowa Blok B4
Aby poznać szczegóły lokali, proszę kliknąć w wybrane piętro lub przewinąć niżej do sekcji "Filtrowanie lokali".

Filtrowanie lokali
Status:
Piętro:
Sortowanie:
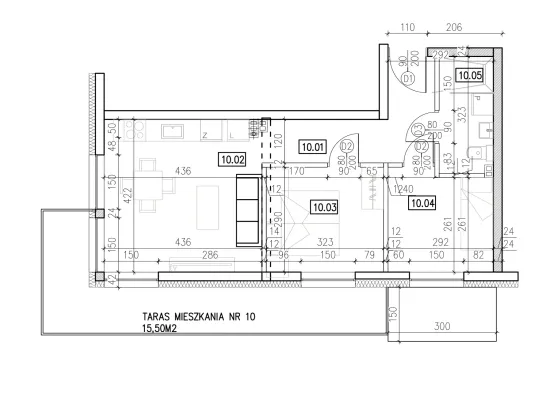
M01
Mieszkanie
417 396,00 złhistoria
Metraż:
Korytarz:
Salon z aneksem:
Sypialnia:
Toaleta:
Balkon:
Komórka:
Piętro:
49.69 m2
1
1
1
1
ok. 9.373 m2
Gratis
0

Pawelczyk Development S.C.
ul. Malinowa 18, 84-300 Lębork
M02
Mieszkanie
257 544,00 złhistoria
Metraż:
Korytarz:
Salon z aneksem:
Toaleta:
Balkon:
Komórka:
Piętro:
30.66 m2
1
1
1
ok. 9.451 m2
Gratis
0

Pawelczyk Development S.C.
ul. Malinowa 18, 84-300 Lębork
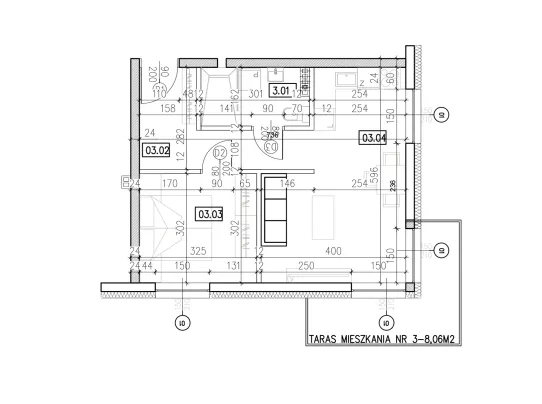
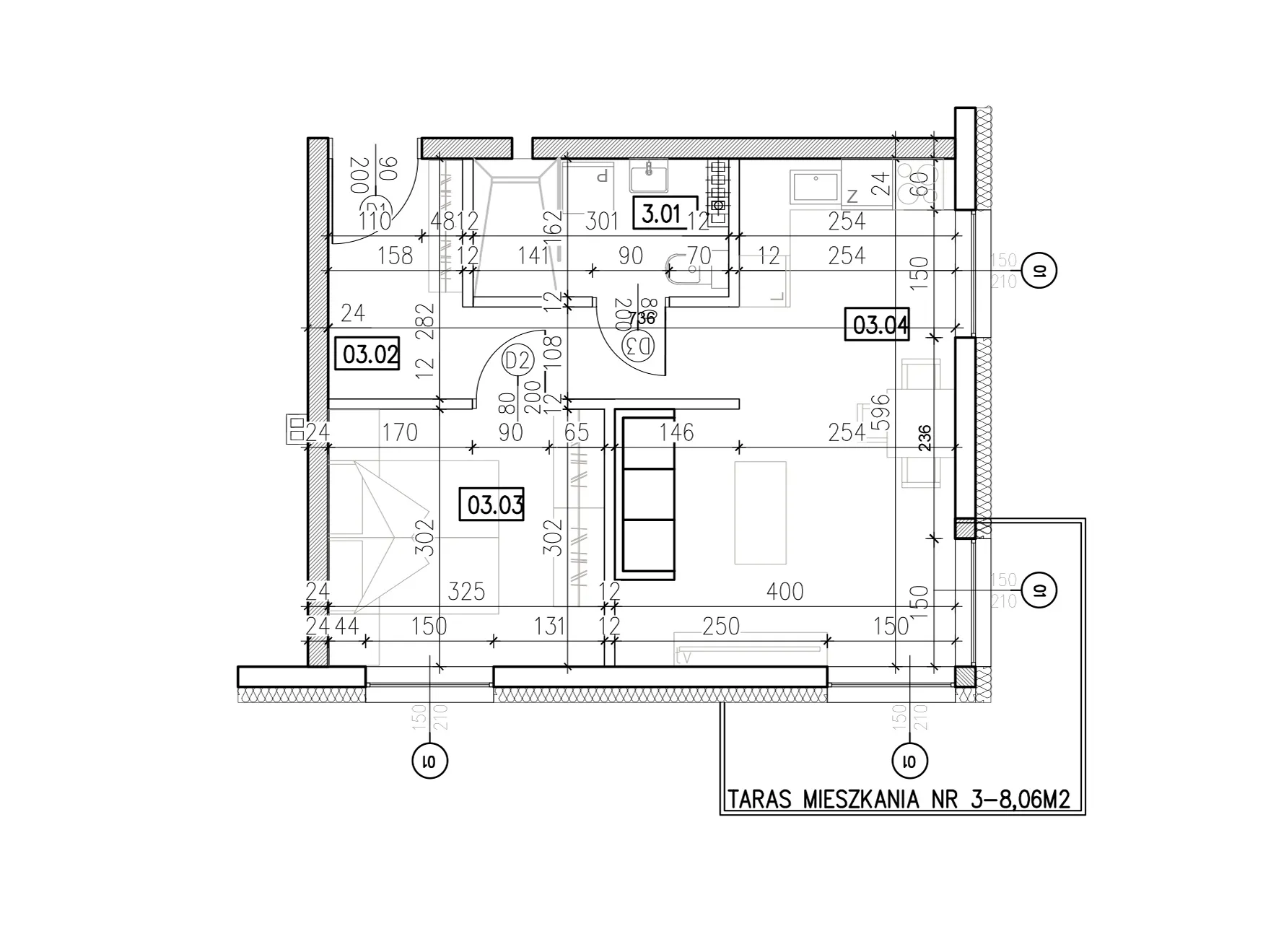
M03
Mieszkanie
343 224,00 złhistoria
Metraż:
Korytarz:
Salon z aneksem:
Sypialnia:
Toaleta:
Balkon:
Komórka:
Piętro:
40.86 m2
1
1
1
1
ok. 10.106 m2
Gratis
0

Pawelczyk Development S.C.
ul. Malinowa 18, 84-300 Lębork
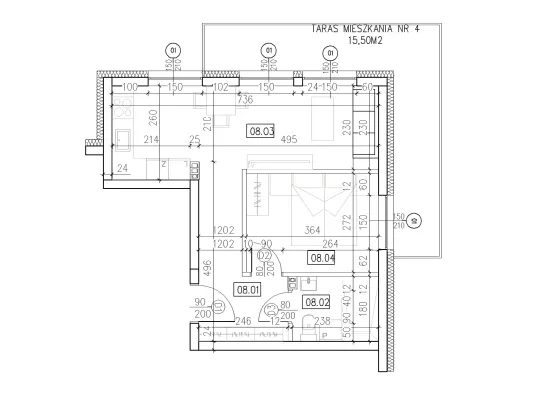
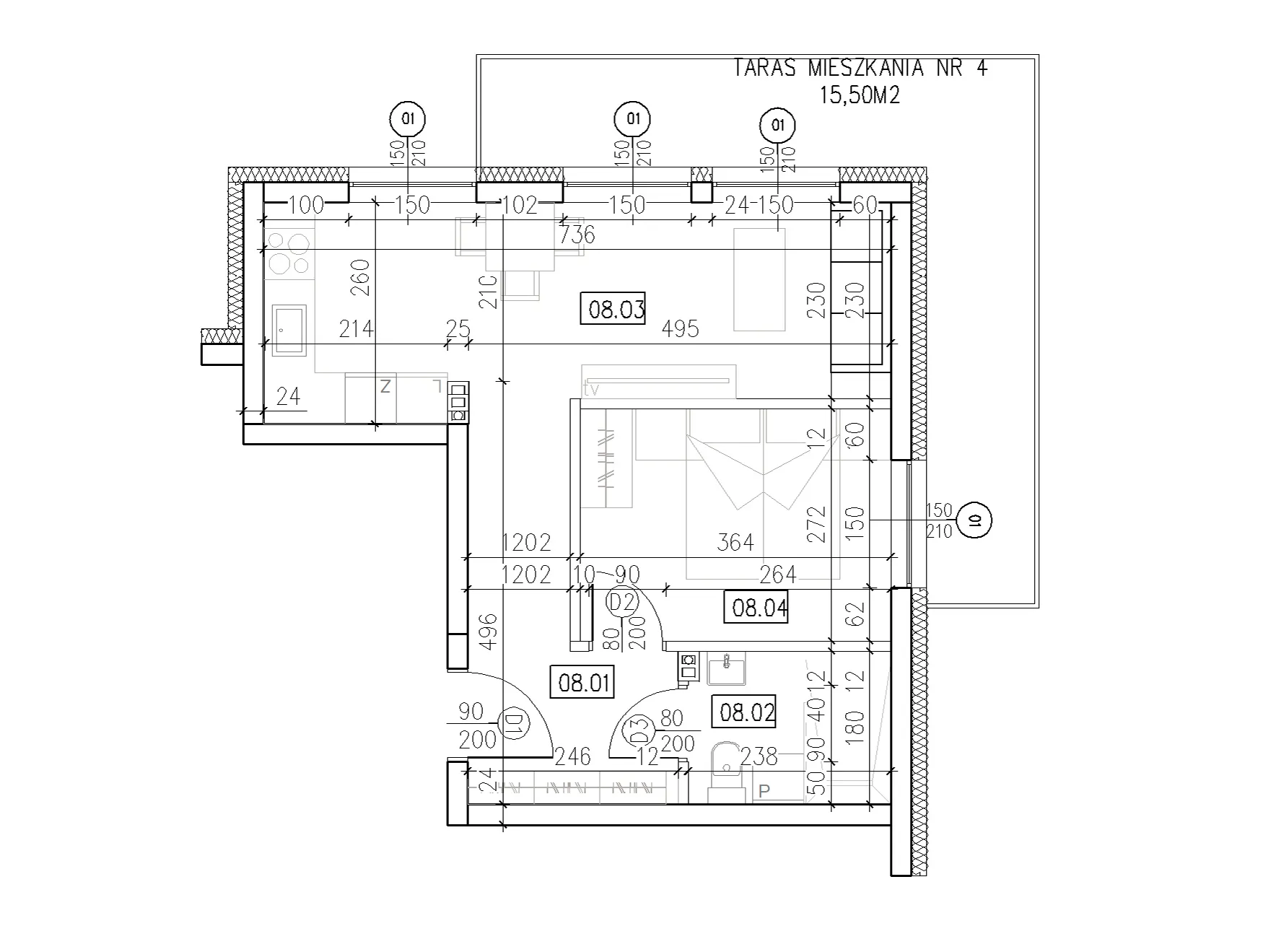
M04
Mieszkanie
325 416,00 złhistoria
Metraż:
Korytarz:
Salon z aneksem:
Sypialnia:
Toaleta:
Balkon:
Komórka:
Piętro:
38.74 m2
1
1
1
1
ok. 10.686 m2
Gratis
0

Pawelczyk Development S.C.
ul. Malinowa 18, 84-300 Lębork
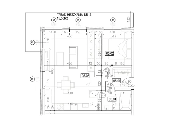
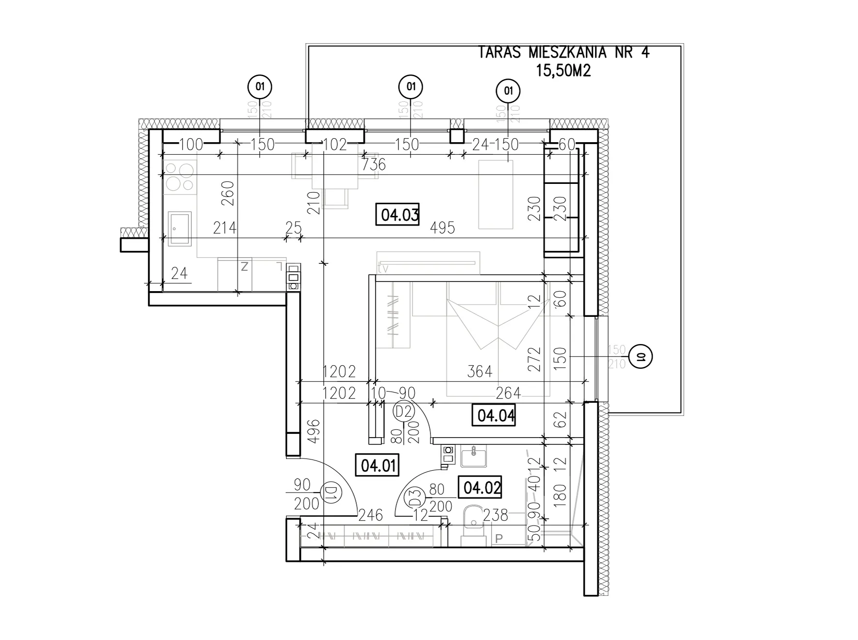
M05
Mieszkanie
417 396,00 złhistoria
Metraż:
Korytarz:
Salon z aneksem:
Sypialnia:
Toaleta:
Balkon:
Komórka:
Piętro:
49.69 m2
1
1
1
1
ok. 8.333 m2
Gratis
1

Pawelczyk Development S.C.
ul. Malinowa 18, 84-300 Lębork
M06
Mieszkanie
394 716,00 złhistoria
Metraż:
Korytarz:
Salon z aneksem:
Sypialnia:
Toaleta:
Balkon:
Komórka:
Piętro:
46.99 m2
1
1
2
1
ok. 10.751 m2
Gratis
1

Pawelczyk Development S.C.
ul. Malinowa 18, 84-300 Lębork
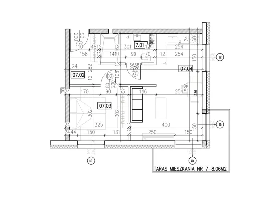
M07
Mieszkanie
343 224,00 złhistoria
Metraż:
Korytarz:
Salon z aneksem:
Sypialnia:
Toaleta:
Balkon:
Komórka:
Piętro:
40.86 m2
1
1
1
1
ok. 9.675 m2
Gratis
1

Pawelczyk Development S.C.
ul. Malinowa 18, 84-300 Lębork
M08
Mieszkanie
325 416,00 złhistoria
Metraż:
Korytarz:
Salon z aneksem:
Sypialnia:
Toaleta:
Balkon:
Komórka:
Piętro:
38.74 m2
1
1
1
1
ok. 10.686 m2
Gratis
1

Pawelczyk Development S.C.
ul. Malinowa 18, 84-300 Lębork
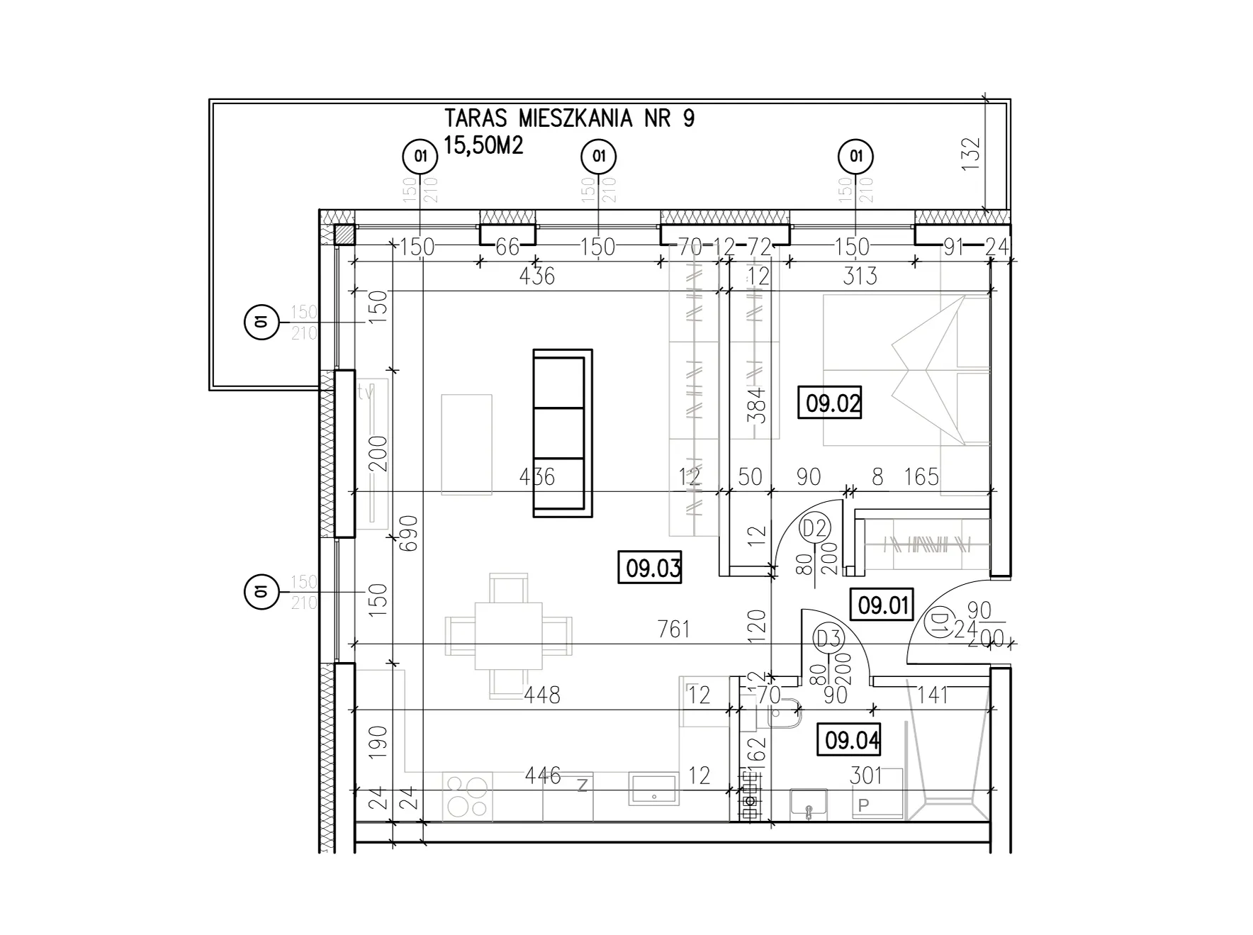
M09
Mieszkanie
417 396,00 złhistoria
Metraż:
Korytarz:
Salon z aneksem:
Sypialnia:
Toaleta:
Balkon:
Komórka:
Piętro:
49.69 m2
1
1
1
1
ok. 9.373 m2
Gratis
2

Pawelczyk Development S.C.
ul. Malinowa 18, 84-300 Lębork
M10
Mieszkanie
394 716,00 złhistoria
Metraż:
Korytarz:
Salon z aneksem:
Sypialnia:
Toaleta:
Balkon:
Komórka:
Piętro:
46.99 m2
1
1
2
1
ok. 9.451 m2
Gratis
2

Pawelczyk Development S.C.
ul. Malinowa 18, 84-300 Lębork
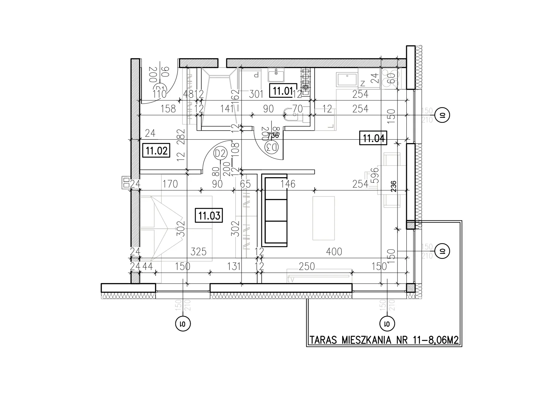
M11
Mieszkanie
343 224,00 złhistoria
Metraż:
Korytarz:
Salon z aneksem:
Sypialnia:
Toaleta:
Balkon:
Komórka:
Piętro:
40.86 m2
1
1
1
1
ok. 10.106 m2
Gratis
2

Pawelczyk Development S.C.
ul. Malinowa 18, 84-300 Lębork
M12
Mieszkanie
325 416,00 złhistoria
Metraż:
Korytarz:
Salon z aneksem:
Sypialnia:
Toaleta:
Balkon:
Komórka:
Piętro:
38.74 m2
1
1
1
1
ok. 10.686 m2
Gratis
2

Pawelczyk Development S.C.
ul. Malinowa 18, 84-300 Lębork
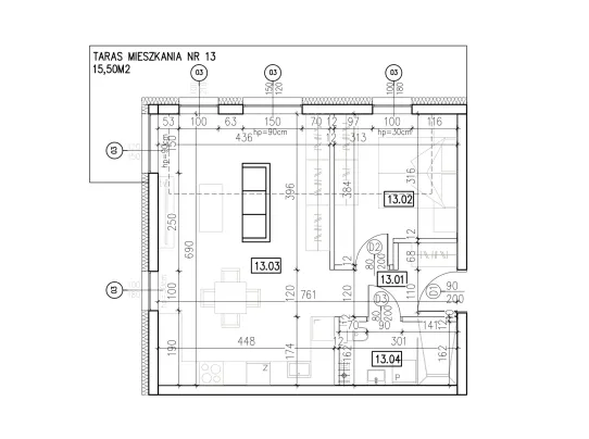
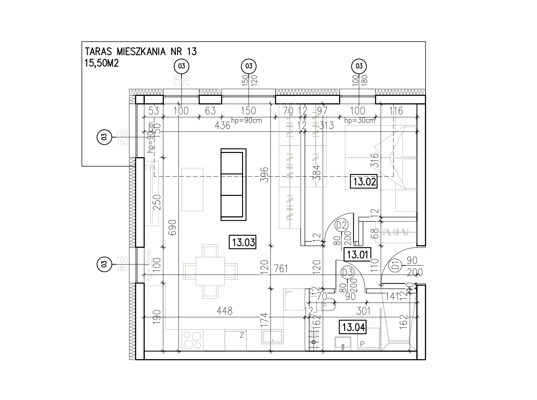
M13
Mieszkanie
417 396,00 złhistoria
Metraż:
Korytarz:
Salon z aneksem:
Sypialnia:
Toaleta:
Balkon:
Komórka:
Piętro:
49.69 m2
1
1
1
1
ok. 8.333 m2
Gratis
3

Pawelczyk Development S.C.
ul. Malinowa 18, 84-300 Lębork
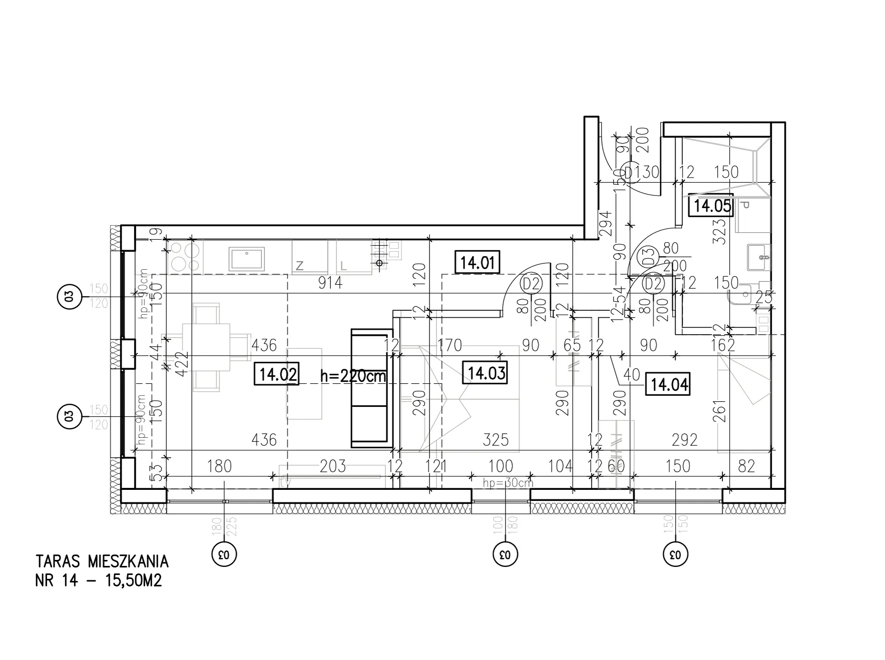
M14
Mieszkanie
378 084,00 złhistoria
Metraż:
Korytarz:
Salon z aneksem:
Sypialnia:
Toaleta:
Balkon:
Komórka:
Piętro:
45.01 m2
1
1
2
1
ok. 10.751 m2
Gratis
3

Pawelczyk Development S.C.
ul. Malinowa 18, 84-300 Lębork
M15
Mieszkanie
323 736,00 złhistoria
Metraż:
Korytarz:
Salon z aneksem:
Sypialnia:
Toaleta:
Balkon:
Komórka:
Piętro:
38.54 m2
1
1
1
1
ok. 9.675 m2
Gratis
3

Pawelczyk Development S.C.
ul. Malinowa 18, 84-300 Lębork
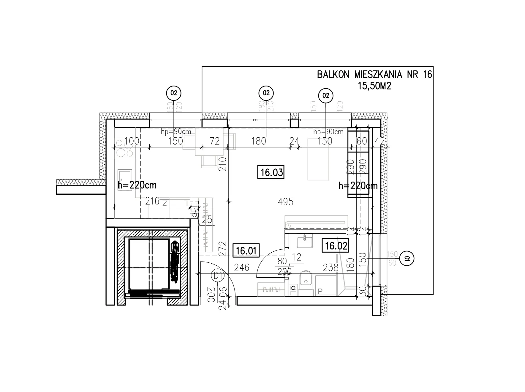
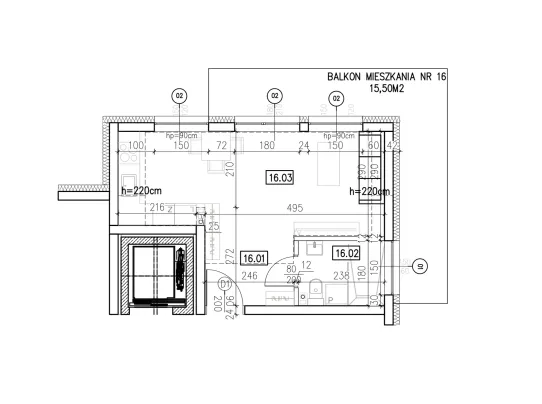
M16
Mieszkanie
233 688,00 złhistoria
Metraż:
Korytarz:
Salon z aneksem:
Toaleta:
Balkon:
Komórka:
Piętro:
27.82 m2
1
1
1
ok. 10.686 m2
Gratis
3

Pawelczyk Development S.C.
ul. Malinowa 18, 84-300 Lębork
M01 - historia zmian ceny:
Cena: 417 396.00 zł (19.01.2026)Cena za garaż: 40 000.00 zł (19.01.2026)
M02 - historia zmian ceny:
Cena: 257 544.00 zł (19.01.2026)Cena za garaż: 40 000.00 zł (19.01.2026)
M03 - historia zmian ceny:
Cena: 343 224.00 zł (19.01.2026)Cena za garaż: 40 000.00 zł (19.01.2026)
M04 - historia zmian ceny:
Cena: 325 416.00 zł (19.01.2026)Cena za garaż: 40 000.00 zł (19.01.2026)
M05 - historia zmian ceny:
Cena: 417 396.00 zł (19.01.2026)Cena za garaż: 40 000.00 zł (19.01.2026)
M06 - historia zmian ceny:
Cena: 394 716.00 zł (19.01.2026)Cena za garaż: 40 000.00 zł (19.01.2026)
M07 - historia zmian ceny:
Cena: 343 224.00 zł (19.01.2026)Cena za garaż: 40 000.00 zł (19.01.2026)
M08 - historia zmian ceny:
Cena: 325 416.00 zł (19.01.2026)Cena za garaż: 40 000.00 zł (19.01.2026)
M09 - historia zmian ceny:
Cena: 417 396.00 zł (19.01.2026)Cena za garaż: 40 000.00 zł (19.01.2026)
M10 - historia zmian ceny:
Cena: 394 716.00 zł (19.01.2026)Cena za garaż: 40 000.00 zł (19.01.2026)
M11 - historia zmian ceny:
Cena: 343 224.00 zł (19.01.2026)Cena za garaż: 40 000.00 zł (19.01.2026)
M12 - historia zmian ceny:
Cena: 325 416.00 zł (19.01.2026)Cena za garaż: 40 000.00 zł (19.01.2026)
M13 - historia zmian ceny:
Cena: 417 396.00 zł (19.01.2026)Cena za garaż: 40 000.00 zł (19.01.2026)
M14 - historia zmian ceny:
Cena: 378 084.00 zł (19.01.2026)Cena za garaż: 40 000.00 zł (19.01.2026)
M15 - historia zmian ceny:
Cena: 323 736.00 zł (19.01.2026)Cena za garaż: 40 000.00 zł (19.01.2026)
M16 - historia zmian ceny:
Cena: 233 688.00 zł (19.01.2026)Cena za garaż: 40 000.00 zł (19.01.2026)




.webp)

































